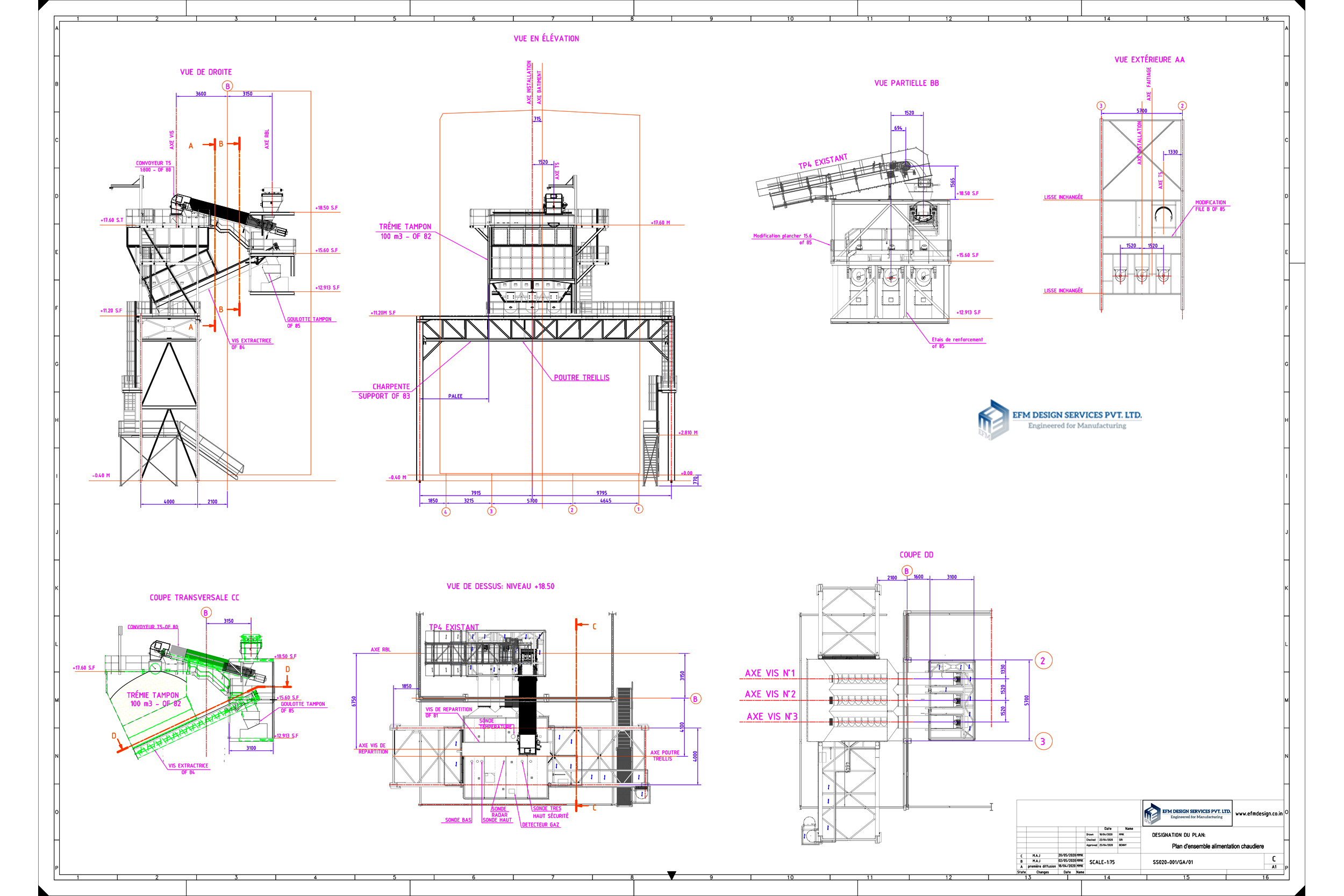
One of France’s biomass plants was recently upgraded, and the task of study and detailed engineering was subcontracted to EFM. The project involved designing a truss girder structure, a hopper system, a belt conveyor and a number of screw conveyor systems that were collectively placed in an already existing structure.
The main area of focus in the existing plant was to design a system that transports wood chips from the storage yard to the boiler. To realize this goal, wood chips from an existing storage hopper are conveyed to a new belt conveyor by means of an existing belt conveyor. From the new belt conveyor, the chips are transferred to a distribution screw conveyor located above a storage hopper that then discharges and loads the hopper with material. With the help of extraction screw conveyors located under the storage hopper, the wood chips are finally conveyed to the boiler system.
Working remotely in the middle of the pandemic, 3D visualization formed the basis of communications with the client. The EFM engineering team transformed site photographs, hand sketches, and minimal process information into 3D parametric models using Autodesk Inventor.
Through the approval drawing process, engineers from EFM and the client worked together to develop the ideal design. The design team efficiently analysed and modelled the structure to avoid possible clashes with existing members, to improve the quality of work and reduce the cost and time of erection. The final design was optimized based on the results from structural analysis.
The fitment and installation of the truss girder structure, hopper system and conveyors in the existing structure/plant were flawless.